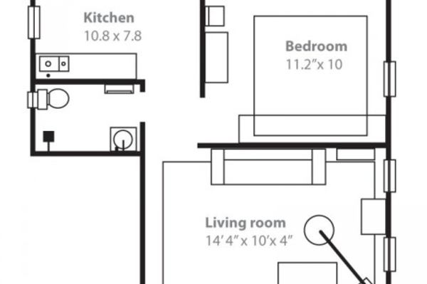
Квартира 37 квадратных метров: Красиво и функционально
В небольшой квартире всего в достатке: кухня шефа, магическая исчезающая кровать и вид из окна на зеленый сад. Хозяйка приложила лишь немного усилий и фантазии, чтобы облагородить свое жилище. Пользуемся идеями!











