Переделка кухни (9 кв.м) в сталинке: Вечная классика (ФОТО+ВИДЕО)
Основной идеей было увеличение функциональности пространства за счет прилегающего коридора, максимально использовать площадь, чтобы в каждом уголке было уютно и комфортно.
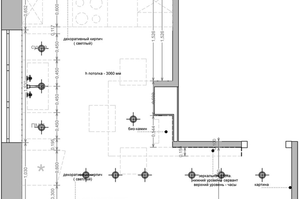
Не обошлось без сложностей – газовая колонка портила весь внешний вид стены. В итоге кованый черный металлический короб не только спрятал газовую колонку с вытяжкой, но и занял достойное место как арт-объект, пишет сайт peredelka.tv
Металлический короб – один из центров кухни, некий домашний очаг. Вторым очагом стал биокамин, органично вписавшийся в стояк с коммуникациями. В результате появилось два очага.
Читай также: Советы по созданию интерьера правильной кухни
ОТДЕЛКА И ЦВЕТОВАЯ ГАММА. За основу дизайнеры взяли теплый цвет Grey White. Окно, дверные наличники, магнитно-графитовая доска – цвета неспелой голубики. Бархатные шторы, чехлы на стулья – приглушенно розово-сиреневые. Шторы на окне – светло-серый лен. Камин, короб вытяжки, карнизы, ножки стола, витрина-бар – черный матовый металл.
Уровень потолка с помощью гипсокартона опустили, но только на 8 см. Это было необходимо, чтобы сделать ниши для светильников. Лепные карнизы – гипсовые.
На полу – массивная дубовая доска, покрытая маслом и воском. Цвет – натуральный дуб с серой патиной.
МЕБЕЛЬ И ТЕХНИКА. Так как цветовой акцент дизайнеры сделали на окне и дверях, подчеркивающих высоту потолка, кухню создали нейтральной.
Фасады из массива выкрашены в цвет стены и тем самым растворяются на ее фоне, помогая выделить основные центры композиции.
Холодильник, посудомоечная машина, сушилка для посуды – встроенные. Верхний ярус задействован максимально с помощью дополнительного ряда фасадов.
Особого внимания заслуживает Г-образный стол с прилегающим комодом-баром. Каркас выполнен из металла, столешница – из того же массива, что и пол, так что органично вписывается в интерьер. Стол с комодом функционально объединили пространство коридора и основного помещения. Дверки комода открываются с помощью нажатия. Добавив подсветку и зеркала, дизайнеры даже визуально расширили пространство коридора.
Широкий подоконник стал отличным местом для "аптекарского огорода". Так как окно находится ниже уровня столешницы, нижняя рама сделана с добором, а смеситель при необходимости складывается: окно может полноценно открываться и закрываться.
ОСВЕЩЕНИЕ. Освещение поделено на три группы. Регулируемые светильники в нишах, направленные на рабочую зону у окна и настенные часы, подчеркивают текстуру кирпичной стены и стену с рамками для семейного альбома.
Смотри также: 5 идей для кухни в 7 кв. м (5 фото)
Диодная подсветка сделана над рабочей поверхностью и комодом.
Наконец, стеклянный шар над обеденным столом играет роль противовеса тяжелому металлическому коробу, создает ощущение невесомости и воздушности пространства.
ТЕКСТИЛЬ. Текстиль в интерьере сыграл очень важную роль. Бархат, который обычно не принято использовать на кухне, дал потрясающее ощущение уюта и тепла. Из него же сшили чехлы для стульев.
Шторы на люверсах смягчают дальнюю часть коридора и полностью исключают ощущение проходной зоны. Поэтому человек, сидящий со стороны комода, не будет испытывать ни малейшего дискомфорта.
Римская штора выполнена из льна.
АКСЕССУАРЫ. Чайный сервиз, столовые приборы и салфетки, хрустальные фужеры для белого и красного вина, шампанского, рюмки для водки, стаканы для виски, ведро для льда, дизайнерские открывашка и штопор, электрические мельницы для соли и перца, ваза для цветов, набор для фондю и казан.
Смотри, как дизайнеры ловко разместили на 9 кв. м кухню с хорошей рабочей площадью, не забыли про полноценный обеденный стол и добавили ощущение семейного очага.
[видео более недоступно]
Смотри также: Маленькая кухня 5 кв. м: 2 выхода из положения (ФОТО)














