Санузел в 4 кв. м: 5 проектов с описанием, илюстрациями, схемами
Если в твоем распоряжении 1,5 кв. м туалета и чуть меньше 3 кв. м ванной комнаты, попробуй объединить пространство. Ведь на площади около 4,5 кв. м уже можно разместить немало. В доказательство – 5 дизайн-решений.
ДИЗАЙН-ПРОЕКТ 1. Без перестановок. Самый простой способ изменить дизайн ванной комнаты 4 кв. м в домах этой серии – демонтировать перегородку, разделяющую ванную и туалет. Сантехнику оставляем на своих местах. А вот вентиляционный короб используем на по полной: прячем в него систему инсталляции подвесной сантехники, скрываем систему слива. И в ту же фальш-перегородку из гипсокартона монтируем розетку и выключатель для светильника у зеркала.
ДИЗАЙН-ПРОЕКТ 2. Ванна на подиуме. Данный дизайн-проект ванной комнаты 4 кв. м предполагает полную перепланировку санузла: в результате раковина оказывается на месте ванной, а ванна – поднимается на подиум. Подъем ванны позволяет решить сразу несколько задач: выделить просторное место для ежедневной процедуры умывания и создать закрытое пространство для принятия ванн. При желании перегородку можно заменить стеклянной стеной, что немного нарушит приватность, но обеспечит лучшую освещенность.
ДИЗАЙН-ПРОЕКТ 3. Ванна в нише. Этот дизайн ванной 4 кв. м предполагает деление пространства на три зоны: в результате ванна оказывается в нише по одну сторону от входа, а унитаз – по другую. Такой дизайн комнаты 4 кв. м позволяет даже выкроить место в нише для встраивания стиральной машины. Чтобы дверца стиральной машины открывалась полностью, саму машинку предполагается поднять на подиум, или заменить традиционную модель модификацией с вертикальной загрузкой.
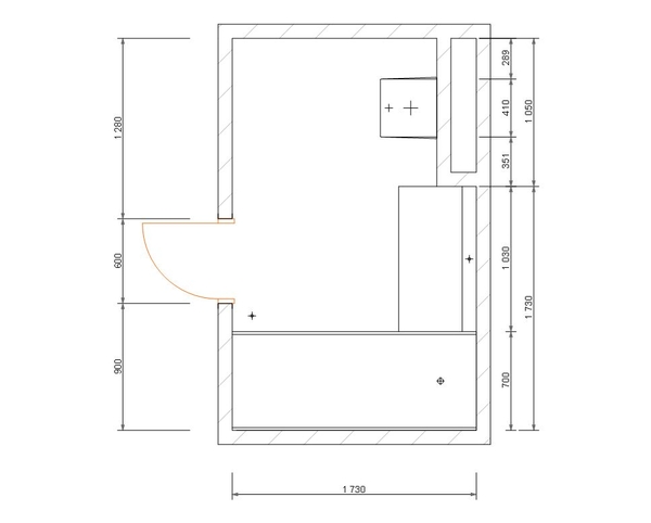
ДИЗАЙН-ПРОЕКТ 4. Душ вместо ванны. В дизайне ванной 4 кв. м отказ от ванны в пользу просторной душевой кабины только приветствуется. Удачно смотрится модель во всю стену. Ограниченная только стеклянными дверцами, она будет зрительно увеличивать маленькое помещение. Слив выполняется в пол строительным способом, либо можно приобрести соответствующие встраиваемые поддоны. Светильники интегрированы в подвесной потолок и прячутся за зеркало. Этот прием дает рассеянный, приятный для глаз свет.
ДИЗАЙН-ПРОЕКТ 5. Функциональные зеркала. Дизайн-проект комнаты 4 кв. м предполагает объединение пространства санузла и его зрительное увеличение с помощью больших стеклянных дверей душевой кабины и полосы зеркала, опоясывающего две стены с выступом вентиляционного короба. Кстати, зеркала здесь служат фасадами систем хранения. Отказавшись от ванны в пользу кабины, удалось найти место даже для биде! Все благодаря перпендикулярному положению унитаза.






